Posem ombres al pati! Millorem el benestar dels alumnes del Ferrà.
- Explica'ns en què consisteix la teva proposta.
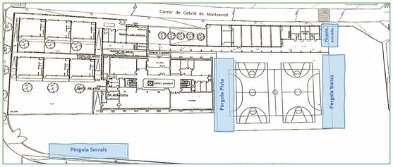
- Instal·lació de pèrgoles i tendals al pati de l’escola Ferrà.
- Quants diners creus que costa fer la teva proposta?
- 50000€
- Especifica el lloc on creus que es podria fer la teva proposta
- Qui es beneficiarà de la teva proposta?
-
JovesInfants
- Explica més concretament qui es beneficiarà de la teva proposta.
- El pati és un espai que no té ombres ni zones cobertes suficients per tal que els dies de calor intensa, que cada vegada són més freqüents, els infants puguin disposar d'espais confortables i frescos. Amb l'augment de temperatures que estem patint és necessari millorar el benestar i la qualitat de vida dels alumnes als espais oberts. El destinatari directe és l'alumnat de l’escola Ferrà que realitza activitats lectives, de lleure, de menjador i extraescolars al pati de l'escola. També podrem aconseguir que en cas de pluja l'alumnat i el professorat es puguin moure per tot el centre sense haver de mullar-se. Això és molt important sobretot a les sortides, on hi acostuma a haver molta gent. Tot i que en principi és un projecte que va dirigit a l'alumnat de l'escola Ferrà, es tracta d'un projecte que pot beneficiar a tota la ciutadania d'Olesa que faci ús dels patis oberts.
- Per què creus que és important la teva proposta?
-
Milloraria l'estat actualMilloraria el benestar de les personesMilloraria l'estat de l'equipamentMilloraria la convivènciaMilloraria la seguretatMilloraria l'adaptació al canvi climàticMilloraria l'espai públic
- Vols afegir alguna cosa més?
Cal atendre la necessitat de disposar d'espais "frescos" al pati per a poder fer tota mena d'activitats, fins i tot les lectives que no es puguin fer dins l'aula per culpa de les altes temperatures. És una de les mesures més importants per a tot allò que no es pugui fer dins de l'edifici per culpa de la calor.
Aquest pressupost participatiu compta amb el suport i l'aprovació del consell escolar, del claustre de mestres i de l'AFI del Ferrà.

Compartir